Eladó családi ház Dabas 99 900 000 Ft

Leírás

KERTES CSALÁDI IKERHÁZ egyik fele eladó Dabas központjához közel.
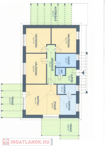
3 hálószobás, szobás, világos, jó elosztású, nagyobb terekkel rendelkező, egyszintes családi ház. 93 nm a hasznos alapterület. Továbbá a ház része egy fedett, és egy fedetlen terasz, valamint egy fedett autóbeálló. a 700 nm-es telekrész elkerített, saját tulajdonú.
A ház 2023-ban épült szeglemezes tetőszerkezettel, gipszkarton födémmel. tégla falazatú, a tető Bramac cseréppel borított.
Az ablakok elektromos redőnnyel felszereltek.
Hőszivattyúval működő padlófűtés, és 4 db Split klíma egyaránt rendelkezésre áll.
Az ingatlan pontos belső elosztása a következő: étkező-konyha-nappali, 3 teljes értékű hálószoba, kamra, fürdőszoba wc-vel, vendég toalett.
A parkolás fedett autóbeállóban megoldott.
Fúrt kút, telepített öntözőrendszer, parkosított udvar, térburkolat.
Napelemes rendszer, fűtés, és a meleg víz költségmentes.
Beépített konyhabútor, benne páraelszívó, sütő, és főzőlap.

Családi ház részletei

Ár: 99 900 000 Ft
Méret: 93 négyzetméter
Azonosító: 11387995
Telek: 700 négyzetméter
Ingatlan állapota: Átlagos
Jelleg: ikerház
Építőanyag: Kérdezzen rá a hirdetőtől »
Fűtés jellege: Egyéb
Komfort fokozat: Összkomfort
Egész szobák: 4

Egyéb jellemzők

  • Csatorna
  • Garázs
  • Kábel TV
  • Melléképület
  • Parketta
  • Pince
  • Terasz