Eladó családi ház Dabas 65 000 000 Ft

Leírás

Megbízható, tapasztalt kivitelező Dabas és vonzáskörzetében vállalja az ehhez hasonló modern családi ház teljes körű megépítését – az alapoktól egészen a kulcsrakész átadásig. 

Épít saját telekre,
A telek kiválasztásában és ügyintézésében is segítünk, ha még nincs meg az ideális helyszín.
Egyedi vagy típusház megoldások
Modern, energiatakarékos műszaki tartalom
Gyors, határidőre történő kivitelezés
 Megbízható csapat, valós referenciákkal

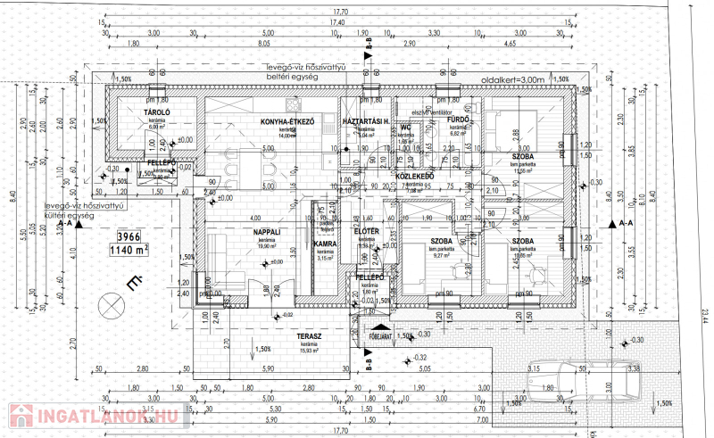
100 nm-es 3 szoba + amerikai konyhás nappali, fürdőszoba, háztartási helyiség.Főbb műszaki jellemzők:

18 nm-es terasz
30-as tégla falazat, 15 cm hőszigetelés
Modern, rejtett tokos redőnyök + szúnyogháló
H-tarifás hőszivattyú gondoskodik a padlófűtésről és melegvízről
2 db klímaberendezés biztosítja a hűtést és a kiegészítő fűtést
Burkolatok 10 000 Ft/nm értékig szabadon választhatók

100 nm-es háznál az ár: 650.000.-/nm
80 nm-es háznál az ár: 750.000.-/nm 
Referencia ház megtekintehtő Dabason. 
Amennyiben hirdetésem felkeltette érdeklődését, keressen az alábbi elérhetőségek egyikén.

Családi ház részletei

Ár: 65 000 000 Ft
Méret: 100 négyzetméter
Azonosító: 11584314
Telek: 1100 négyzetméter
Ingatlan állapota: Kitűnő
Jelleg: családi ház
Építőanyag: Kérdezzen rá a hirdetőtől »
Komfort fokozat: Összkomfort
Egész szobák: 3

Egyéb jellemzők

  • Garázs
  • Kábel TV
  • Melléképület
  • Parketta
  • Pince
  • Terasz