Az értékesítő:
Vass Erika
+36 20 400 4026

Eladó családi ház Kakucs, 45 000 000 Ft, 125 négyzetméter

45 000 000 Ft
családi ház, 125 négyzetméter
Egész szobák:
4
Komfort fokozat:
Összkomfort
Ingatlan állapota:
Felújítandó
Azonosító:
11574119
Értékesítés típusa:
eladó
Ingatlan típusa:
családi ház
Jelleg:
Családi ház
Település:
Kakucs
Alapterület:
125
Telekterület:
1500
Ár:
45 000 000 Ft
Fűtés jellege:
Cirkó
Terasz:
Van
Erkély:
Nincs
Melléképület:
Nincs
Pince:
Van
Parketta:
Nincs
Kábel TV:
Nincs
Telekterület típusa:
négyzetméter
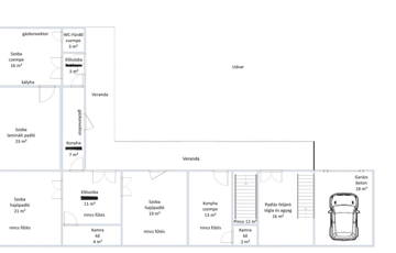
 Budapesttől az M5 autópályán 40km-re található,Kakucs központi részén eladásra kínálok egy 125 nm fellújítondó 4 szobás családi házat.Az eladó sorba került ház, az 50-es években épült.Utcafrontos beépítésű a telken befelé L alakban helyezkedik el.Polgári jellegű a külső része, és a belső elosztáson is fel fedezhető.A villanyhálózat 2006-ben teljes körűen fel lett újítva.Részben vályog és tégla építésű is.A ház elosztása alkalmas 2 önálló lakás kialakítására is.Az ingatlan összközműves, ipari, éjszaki áram is van.A telek 1475nm, gazdálkodásra, állattartásra is alkalmas.A ház része a garázs is de ezen kívül egy könnyűszerkezetes tároló is.Tehermentes, nagyon rövid időn belül birtokba vehető. Jelenleg a ház kiürítésé zajlik.Befektetésre is ajánlom.CSOK,hitel, felvehető! Ha felkeltette érdeklődését kérem hívjon. O62O4OO4O26  
https://ingatlanok.hu/elado/haz/kakucs/45-millio-ft;125-negyzetmeter;5-szoba;cirko-futes/11574119